Проект №64 Двухэтажный Дом с террасой 9х7

каркас из строганой доски
Создайте свой план для этого проекта
и отправьте его нам на расчет в один клик.
Каркасный дом (150 мм) 7х9 Толщина утепления 150 мм 3192200 Заказать
Каркасный дом (200 мм) 7х9 Толщина утепления 200 мм 3442200 Заказать

Чтобы получить свою индивидуальную планировку, пользуйтесь планировщиком.

С использованием планировщика вы можете создать схемы, эскизы, планы, чертежи уникального дома с мансардой, эркером, с необходимым количеством комнат. Вы сможете получить индивидуальный проект с планировкой, стопроцентно отвечающий вашим условиям.

Вы имеете возможность выбрать тип кровли. Крышу можно сделать четырехскатной, двускатной и вальмовой. Двухскатная считается самой востребованной у малометражных построек.

Самые востребованные размеры: мини - до 50 м2 (в большинстве случаев, одноэтажные дома); компактные - от 70 до 100 кв. М (обычно 2х этажные); большие - от 150 кв. М и свыше.

Готовы предложить дуплексы - каркасные постройки с 2-мя входами на несколько семей. Подобные дома предполагаются для нескольких хозяев, они делятся на две части, для обоих половин - отдельный вход.


Наши работы

Перейти в галерею


Комплектация

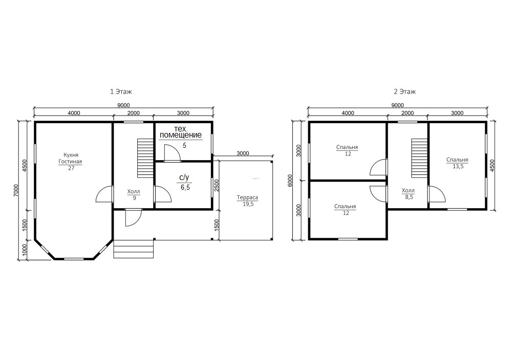
Площадь застройки: 69 м2
Длина: 9 м
Ширина: 7 м
Общая площадь: 96 м2
Исполнение Под ключ (с отделкой)
Фундамент Свайно-винтовой или ж/б сваи (рассчитываются отдельно).
Гидроизоляция фундамента Рубероид в два слоя.
Основание (обвязка) Из обрезного бруса 150х150 мм. 150х200 мм. согласно выбранной толщине утепления. Торцевая доска строганая 45х145/45х195+/-5 мм. согласно выбранной толщине утепления. Обработка антисептиком.
Цокольное перекрытие Строганая доска камерной сушки 45х145/45х195+/-5 мм. с шагом 590 мм. Обработка антисептиком.
Пол черновой Обрезная доска камерной сушки 20х100 мм.
Влаго-ветрозащита чернового пола Мембрана Ондутис А100.
Внешние стены Стойки каркаса из строганой доски камерной сушки 45х145/45х195+/-5 мм. с шагом 590 мм. Верхняя двойная и нижняя обвязки из строганой доски камерной сушки 45х145/45х195+/-5 мм. Разгрузочный ригель из строганой доски 45х145+/-5 мм. Укосины из строганой доски 20х95 мм.
Перегородки Стойки каркаса из строганой доски камерной сушки 45х95+/-5 мм. с шагом 590 мм. Верхняя двойная и нижняя обвязки из строганой доски 45х95+/-5 мм. Разгрузочный ригель из строганой доски камерной сушки 45х145+/-5 мм. Укосины из строганой доски камерной сушки 20х95 мм.
Сборка каркаса На гвозди.
Высота от пола до потолка Дом одноэтажный: 2,5 м. Дом с мансардой: 1-ый этаж- 2,5 м.
2-ой этаж (мансарда)- 2,3 м.
Дом в полтора и два этажа:
1-ый этаж 2,5 м.
2-ой этаж 2,4 м. в полутораэтажном доме
2,5 м. в двухэтажном доме.
Внешняя отделка стен Имитация бруса камерной сушки, сорт АВ, толщиной 17 мм. Монтаж через строганый брусок камерной сушки 45х45+/-5 мм. (вентилируемый фасад). Влаго-ветрозащитная мембрана- Ондутис А100.
Внутренняя отделка стен, перегородок Евровагонка камерной сушки, сорт АВ, толщиной 12,5 мм. по строганой рейке 20х40+/-5 мм. либо ГКЛ 12,5 мм.
Отделка потолка Евровагонка камерной сушки, сорт АВ толщиной, 12,5 мм. по строганой рейке 20х40+/-5 мм. либо ГКЛ 12,5 мм.
Пол чистовой Шпунтованная доска камерной сушки толщиной 35-36 мм. сорт АВ. по строганой рейке 20х40+/-5 мм. либо шпунтованная ДСП 16 мм. по разряженной обрешётке из строганой доски камерной сушки 20х95+/-5 мм.
Утепление (пол, потолок) Минеральная вата Knauf 150/200 мм. согласно выбранной толщине утепления.
Утепление стен Плитный утеплитель Rockwool, толщиной 150/200 мм. согласно выбранной толщине утепления.
Звукоизоляция перегородок Плитный утеплитель Rockwool, толщиной 100 мм.
Пароизоляция (стены, перегородки, пол, потолок) Плёнка Ондутис R70. Дополнительная герметизация нахлёстов/примыканий пароизоляционной плёнки клейкой лентой Delta.
Окна Двухкамерные стеклопакеты ПВХ белого цвета, профиль 60 мм. В комплекте: отливы, подоконники, москитные сетки.
Двери Входная- металлическая, утеплённая (Россия). Межкомнатные- филёнчатые.
Наличники на окна и двери Наличник деревянный, строганый, камерной сушки 70-90 мм. с двух сторон.
Лестница (при наличии второго этажа) Деревянная, одно или двухмаршевая. Перила- заводские резные, балясины- заводские точеные, устанавливаются стартовые точёные столбы. Ступени 40х200 мм. Тетива лестницы- 90х140 мм.
Крыша Двускатная, ломаная или вальмовая в соответствии с проектом.
Стропильная система Выполнена из строганой доски камерной сушки 45х145/45х195+/-5 мм. Шаг установки стропил 590 мм.
Обрешётка Выполняется из строганой доски камерной сушки толщиной 20х95+/-5 мм. Шаг крепления обрешетки 350 мм. Контробрешётка выполняется из строганого бруска камерной сушки 45х45+/-5 мм. Крепится по стропилам (вентиляционный зазор).
Подкровельная мембрана Ондутис А100
Кровельное покрытие (на выбор) Металлочерепица 0,45 мм. Цвет на выбор.
Фронтоны (при наличии) Каркас из строганой доски камерной сушки 45х145/45х195+/-5 мм. Обшиваются имитацией бруса камерной сушки, сорт АВ, толщиной 17 мм. Монтаж через строганый брусок камерной сушки 45х45+/-5 мм. (вентилируемый фасад). Влаго-ветрозащитная мембрана- Ондутис А100. Монтаж вентиляционных решёток.
Свесы крыши Ширина 400 мм. Подшиваются вагонкой камерной сушки, сорт АВ.
Терраса/балкон (при наличии) Устанавливаются опорные столбы из строганного бруса камерной сушки 140х140 мм.
Отделка потолка террасы/балкона Евровагонка камерной сушки толщиной 12,5 мм. сорт АВ.
Пол террасы/балкона Шпунтованная доска камерной сушки толщиной 35-36 мм. сорт АВ.
Ограждение террасы/балкона Перила- строганая доска. Балясины- точеные, фигурные. Либо ограждение в скандинавском стиле. Устанавливаются ступени у входа.
Допуск на геометрические параметры Составляет +/- 50 мм по длине с каждой стороны.
Допускается стыковка имитации бруса, вагонки и половой доски По всему периметру стен дома (если ширина и длина дома более 6,0 метров). Вагонки и доски пола в каждой отдельной комнате.
Допуски по имитации бруса, вагонке, доске +/- 5 мм.
В стоимость включена Доставка комплекта материала в радиусе 500 км. от г. Пестова Новгородской области и сборка дома на вашем участке.
Гарантия 5 лет.
Бытовка строительная 2,0х3,0 м. каркасно-щитовая. Стоимость 23000 руб. Остаётся на участке Заказчика.
Туалет 1,0х1,0 м. каркасно-щитовой. Стоимость 12000 руб. Остаётся на участке Заказчика.
Генератор Стоимость аренды на весь срок строительства 15000 руб. ГСМ за счёт Заказчика.

Постройка каркасных домов выполняется в нескольких видах: под усадку, когда дом отстаивается в течение некоторого времени и полностью под ключ.

Зимой профессионалы советуют строить дома в мороз, чтобы каркас не промок, в летнее время - не в дождливую.

Оптимальными для дачи или сада считают домики на винтовых сваях, в нашем каталоге имеются одноэтажные и полуторатажные дома.

При условии, что вы планируете проживать постоянно, советуем надежные и очень теплые коттеджи и дома на плитных и ленточных фундаментах.

Существует 2 вида утепления: 150 мм и 200 мм. Каркасные дома с толщиной стен 200 мм получаются теплее, но несколько дороже.

Дополнительные услуги


Проект 64 двухэтажного дома с большой террасой и эркером выполнен в размерах по внешним граням стен 7х9 м.. Каркасные стены здания имеют толщину 150 мм. Компактный дом послужит уютным пристанищем для дачного сезонного отдыха или постоянного проживания с семьей. Общая площадь дома – 96 кв.м..

Высота первого этажа – 2,45 м. Потолочная отделка во всех помещениях выполнена вагонкой класса «В».

Крыша двускатная. Несущие конструктивные элементы крыши – наслонные стропильные балки – 40×100 мм. Кровля из ондулина, который предлагается в 3 вариантах цвета: зеленый, коричневый, красный.

Пол первого уровня заложен с утеплителем ISOVER по грунту на лагах, сечение по расчету – 100×150 мм. Чистовое покрытие пола из строганных досок с пазо-гребневыми замками. Фасады дома имеют необходимое количество оконных проемов с заполнением зимними стеклопакетами. Входная дверь в исполнении с глухим полотном, тогда как внутренние двери заложены с филенками.

Компания «Дача из бруса» предлагает услуги по разработке и реализации проектов каркасных домов в Смоленске. С нами получить комфортное жилье в короткие сроки по демократичной цене – реально!


Популярные проекты


Каркасные дома Каркасные дома 8х8 Бани из бруса 5х8
хит продаж
Тип:
Общая площадь: 2
2595700
от 2472200
хит продаж
Тип: с маленькой террасой
Общая площадь: 2
2112700
от 2012200
хит продаж
Тип:
Общая площадь: 2
2721700
от 2592200
Дома из бруса

Заказать или задать вопрос



Заказать или задать вопрос

Заказать звонок