Дома под ключ в Смоленске
Отзывы из Яндекс Карт
4.9
103 отзывов
Дополнительные услуги 88%
2 154 оценок
Комплектации 89%
1 535 оценок
Планировки 90%
2 484 оценок
Проекты 93%
2 231 оценок
С
Роберта Минаева04/27/2026 г.
Бюджетный домик 4х4 для хранения инвентаря и ночёвок сделали за смешные деньги. Не ждала чудес, но брус собрали ровно, крыша не течёт. Единственное — запах пропитки держался два месяца, пришлось проветривать.
С
Захар Шевелёв03/02/2026 г.
Крыша на моей бане 7х7 с сауной потекла через месяц после стройки. Позвонил в БрусДома — приехали, нашли где не докрутили саморезы, исправили. Обидно, что сам не проверил.
С
Василиса Устинова05/15/2025 г.
Выражаю сердечную благодарность компании «Брус дома» за возведение уютного каркасного дома, в котором теперь проводим каждые выходные — от проектирования до сдачи объекта все было организовано на высшем уровне, без задержек и нареканий. Очень порадовала теплота и душевность деревянных стен, которые создают неповторимую атмосферу домашнего очага.
Отзывы из Google Карт
4.8
62 отзывов
Дополнительные услуги 88%
2 154 оценок
Комплектации 89%
1 535 оценок
Планировки 90%
2 484 оценок
Проекты 93%
2 231 оценок
С
Диана Ц.02/23/2026 г.
Брала готовый проект 6х7,5 с мансардой. Внесли свои правки — поменяли местами кухню и гостиную. Без проблем адаптировали. Строили пять недель, каждый этап согласовывали. Единственное — профнастил на крыше привезли с царапиной, приняла из-за скидки.
С
Эдуард01/03/2026 г.
Брат посоветовал эту компанию. Заказал одноэтажный дом 7х7 с верандой и котельной. Цена вышла чуть выше рыночной, но использовали брус камерной сушки. Уже два года живём — не рассохся, не повело. Только во время монтажа повредили одно стекло, заменили за свой счёт.
С
Ярик Т.06/05/2025 г.
Хочу выразить огромную благодарность коллективу компании за наш новый каркасный дом — с момента обращения и до сдачи объекта чувствовалась профессиональная рука, все этапы были прозрачны и понятны, никаких скрытых накруток или неприятных сюрпризов, построили действительно теплый и уютный дом.
Отзывы из 2гис
4.9
33 отзывов
Дополнительные услуги 88%
2 154 оценок
Комплектации 89%
1 535 оценок
Планировки 90%
2 484 оценок
Проекты 93%
2 231 оценок
С
Павел03/26/2025 г.
Сомневался в выборе между брусом и каркасом, но технолог компании аргументированно объяснил плюсы и минусы каждого варианта для моего участка, что помогло принять верное решение.


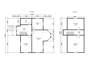
Проект №34 Дом с эркером 9х10

брус камерной сушки
Создайте свой план для этого проекта
и отправьте его нам на расчет в один клик.
Под ключ (с отделкой) 9х10 Профилированный 140х140 мм 2552200 Заказать
Под ключ (с отделкой) 9х10 Профилированный 190х140 мм 2842200 Заказать
Под усадку (без отделки) 9х10 Cруб дома 140х140 мм 1632200 Заказать
Под усадку (без отделки) 9х10 Cруб дома 190х140 мм 1912200 Заказать


Комплектация

Площадь застройки: 90 м2
Длина: 9 м
Ширина: 10 м
Общая площадь: 86.8 м2
Под ключ (с отделкой) Под усадку (без отделки)
Фундамент Свайно-винтовой или ж/б сваи (рассчитываются отдельно).
Гидроизоляция фундамента Рубероид в два слоя.
Основание (обвязка) Из обрезного бруса (100х150 мм. 150х150 мм. 150х200 мм. согласно выбранному сечению бруса). Обработка антисептиком.
Количество рядов основания 2 2
Цокольное перекрытие Обрезной брус камерной сушки 100х150/50х200 мм. с шагом 600 мм. Обработка антисептиком. Обрезной брус естественной влажности 100х150/50х200 мм. с шагом 600 мм. Обработка антисептиком.
Пол черновой Обрезная доска камерной сушки 20х100 мм. Обрезная доска естественной влажности 20х100 мм.
Внешние стены Профилированный брус камерной сушки, сечением 90х140/140х140/190х140 мм. по выбранной комплектации. Два вида профиля: 
1. С двух сторон, прямой со снятой фаской. 2. Снаружи под «блок- хаус», внутри прямой.
Высота сруба: Сруб одноэтажный- 18 венцов
Сруб с мансардой- 18 венцов
Сруб в 1,5 этажа- 18 венцов, далее каркас с внешней отделкой имитацией бруса.
Сруб в 2 этажа- 37 венцов
Профилированный брус естественной влажности, сечением 90х140/140х140/190х140 мм. по выбранной комплектации. Два вида профиля: 
1. С двух сторон, прямой со снятой фаской. 2. Снаружи под «блок- хаус», внутри прямой.
Высота сруба: Сруб одноэтажный- 18 венцов
Сруб с мансардой- 18 венцов
Сруб в 1,5 этажа- 18 венцов, далее каркас с внешней отделкой имитацией бруса.
Сруб в 2 этажа- 37 венцов
Межвенцовый утеплитель Джут (льноджутовое полотно). Джут (льноджутовое полотно).
Перегородки 1-го этажа Профилированный брус камерной сушки, сечением 90х140 мм. Профилированный брус естественной влажности, сечением 90х140 мм.
Перегородки 2-го этажа Каркасные: доска камерной сушки 40х100 мм, обшитые евровагонкой хвойных пород, камерной сушки, толщиной 12,5 мм. сорт «АВ» (дома с мансардой и в 1,5 этажа). Брусовые: профилированный брус камерной сушки, сечением 90х140 мм. (дома двухэтажные). Каркасные: доска естественной влажности 40х100 мм. (дома с мансардой и в 1,5 этажа). Брусовые: профилированный брус естественной влажности, сечением 90х140 мм. (дома двухэтажные).
Сборка сруба Берёзовый нагель. Берёзовый нагель.
Соединение углов сруба «Тёплый угол» (коренной шип). «Тёплый угол» (коренной шип).
Высота от пола до потолка Сруб одноэтажный: 2,4 м. (18 венцов) Сруб с мансардой: 1-ый этаж- 2,4 м. (18 венцов)
2-ой этаж (мансарда)- 2,3 м.
Сруб в полтора и два этажа:
1-ый этаж 2,4 м ±4 см. (18 венцов)
2-ой этаж 2,4 м ±4 см. каркасные аттиковые стены (боковые) высотой 1,5 м. в полутораэтажном доме
2,4 м ±4 см (поднят брусом на 18 венцов) в двухэтажном доме.
Сруб одноэтажный: 2,5 м. (18 венцов) Сруб с мансардой: 1-ый этаж- 2,5 м. (18 венцов)
2-ой этаж (мансарда)- 2,4 м.
Сруб в полтора и два этажа:
1-ый этаж 2,5 м ±4 см. (18 венцов)
2-ой этаж 2,5 м ±4 см. каркасные аттиковые стены (боковые) высотой 1,5 м. в полутораэтажном доме
2,5 м ±4 см (поднят брусом на 18 венцов) в двухэтажном доме.
Утепление (пол, потолок, мансарда) Минеральная вата Knauf 150 мм. Отсутствует.
Пароизоляция (пол, потолок, мансарда) Ондутис R70. Отсутствует.
Пол чистовой Шпунтованная доска камерной сушки толщиной 36 мм. сорт АВ. по рейке 20х40 мм. либо шпунтованная ДСП 16 мм. по разряженной обрешётке из обрезной доски камерной сушки 20х100 мм. Отсутствует.
Потолки Евровагонка камерной сушки толщиной 12,5 мм. сорт АВ. Отсутствует.
Окна Деревянные, двойного остекления. Отсутствуют.
Двери Входная- металлическая, утеплённая (Россия). Межкомнатные- филёнчатые. Отсутствуют.
Наличники на окна и двери Наличник деревянный, строганый, камерной сушки 70-90 мм. Отсутствует.
Шиповка оконных и дверных проёмов (ройки) Да. Отсутствует.
Лестница (при наличии второго этажа) Деревянная, одно или двухмаршевая. Перила- заводские резные, балясины- заводские точеные, устанавливаются стартовые точёные столбы. Ступени 40х200 мм. Тетива лестницы- 90х140 мм. Отсутствует.
Крыша Двускатная, ломаная или вальмовая в соответствии с проектом. Двускатная, ломаная или вальмовая в соответствии с проектом.
Стропильная система Выполнена из обрезной доски камерной сушки 40х150 мм. Шаг установки стропильных ног 600 мм. Выполнена из обрезной доски естественной влажности 40х150 мм. Шаг установки стропильных ног 600 мм.
Обрешётка Выполняется из обрезной доски камерной сушки толщиной 20-22 мм. Шаг крепления обрешетки 300 мм. Контробрешётка выполняется из бруска камерной сушки 40х50 мм. Крепится по стропильным ногам (вентиляционный зазор). Выполняется из обрезной доски естественной влажности толщиной 20-22 мм. Шаг крепления обрешетки 300 мм. Контробрешётка выполняется из бруска естественной влажности 40х50 мм. Крепится по стропильным ногам (вентиляционный зазор).
Подкровельная мембрана Ондутис А100 Ондутис А100
Кровельное покрытие (на выбор) Ондулин, Черепица Ондулин. Ондулин, Черепица Ондулин.
Фронтоны (при наличии) Каркас из обрезной доски камерной сушки 40х150 мм. Обшиваются вагонкой камерной сушки толщиной 16 мм. сорт АВ по контррейке 20х40 мм. (вентиляционный зазор). Влаго-ветрозащита Ондутис А100. Монтаж вентиляционных решёток. Каркас из обрезной доски естественной влажности 40х150 мм. Обшиваются вагонкой камерной сушки толщиной 16 мм. сорт АВ по контррейке 20х40 мм. (вентиляционный зазор). Влаго-ветрозащита Ондутис А100. Монтаж вентиляционных решёток.
Свесы крыши Ширина 400 мм. Подшиваются вагонкой камерной сушки, сорт АВ. Ширина 400 мм. Подшиваются вагонкой камерной сушки, сорт АВ.
Терраса/балкон (при наличии) Устанавливаются опорные столбы из строганного бруса камерной сушки 140х140 мм. с компенсационными болтами под усадку. Устанавливаются опорные столбы из строганного бруса естественной влажности 140х140 мм. с компенсационными болтами под усадку.
Отделка потолка террасы/балкона Евровагонка камерной сушки толщиной 12,5 мм. сорт АВ. Отсутствует.
Пол террасы/балкона Шпунтованная доска камерной сушки толщиной 36 мм. сорт АВ. Отсутствует.
Ограждение террасы/балкона Перила- строганая доска. Балясины- точеные, фигурные. Либо ограждение в скандинавском стиле. Устанавливаются ступени у входа. Отсутствует.
Допуск на геометрические параметры сруба Составляет +/- 50 мм по длине с каждой стороны. Составляет +/- 50 мм по длине с каждой стороны.
Допускается стыковка бруса, вагонки и половой доски По всему периметру стен дома (если ширина и длина дома более 6,0 метров). Вагонки и доски пола в каждой отдельной комнате. По всему периметру стен дома (если ширина и длина дома более 6,0 метров).
Допуски по брусу, доске +/- 5 мм. +/- 5 мм.
В стоимость включена Доставка комплекта материала в радиусе 500 км. от г. Пестова Новгородской области и сборка дома на вашем участке. Доставка комплекта материала в радиусе 500 км. от г. Пестова Новгородской области и сборка дома на вашем участке.
Гарантия 5 лет. 2 года.
Бытовка строительная 2,0х3,0 м. каркасно-щитовая. Стоимость 23000 руб. Остаётся на участке Заказчика. Стоимость 23000 руб. Остаётся на участке Заказчика.
Туалет 1,0х1,0 м. каркасно-щитовой. Стоимость 12000 руб. Остаётся на участке Заказчика. Стоимость 12000 руб. Остаётся на участке Заказчика.
Генератор Стоимость аренды на весь срок строительства 10000 руб. ГСМ за счёт Заказчика. Стоимость аренды на весь срок строительства 10000 руб. ГСМ за счёт Заказчика.

Строительство деревянного дома выполняется в 2-х видах: сразу под ключ и под усадку, когда сруб будет отстаиваться некоторое время.

В зимнее время лучше строить дом из зимнего леса, в летний сезон - из бруса камерной сушки.

Максимально подходящими для сада или дачи стали экономичные домики на винтовых сваях, в нашем онлайн-каталоге можно найти одноэтажные и полуторатажные варианты домов.

В случае если дом строится для проживания в течение всего года, можем предложить теплые и надежные дома на ленточных и плитных фундаментах.

Имеется два размера профбруса: 190х140 мм и 140х140 мм. Сооружения из вертикального бруса возводятся из бруса 140х190 мм.

Дополнительные услуги


Превосходные дизайнерские идеи, которые нашли свое воплощение в проекте 34, превратили полутораэтажный дом с эркером в один из бестселлеров нашей компании. Здание общей площадью 86.8 кв.м. практично, удобно и привлекательно внешне. Природные материалы, из которых предлагается возвести дом, создадут особый уют и гармонию, восстановят эмоциональное состояние. Продуманная планировка жилых помещений и естественный свет, проникающий в дом через зимние двойные окна, располагают к приятному отдыху в кругу семьи или друзей.

Размеры дома – 9х10 м.. Внутренние помещения соединяются межкомнатными дверьми филенчатого типа. Стены возведены из строганного бруса с прокладкой джутового льнополотна. Перекрытие произведено из обрезной доски с последующим использованием ондулина в качестве кровельного материала. Крыша двускатная. Обрешетка выполнена с помощью полуобрезной доски. Монтирование полов включает два этапа: укладка чернового слоя, а затем чистового.

Если Вам приглянулся проект дома, мы готовы предложить услуги по его возведению под ключ или усадку в Смоленске. Оставьте заявку на сайте или позвоните нам, и всего через 2-3 недели сможете заселиться в новый дом!


Популярные проекты

хит продаж брус камерной сушки
Тип: с маленькой террасой
Общая площадь: 109.72
1661200
от 1582200
хит продаж брус камерной сушки
Тип: с маленькой террасой
Общая площадь: 52.22
1356700
от 1292200

Заказать или задать вопрос



Заказать или задать вопрос

Заказать звонок